Rif: IMMO-124390637
VILLASANTA
MONZA BRIANZA
Scopri questo splendido attico su due livelli, situato al terzo piano di un elegante edificio con ascensore. Con una superficie commerciale di 242 m² e calpestabile di 240 m², questo immobile offre spazi ampi e luminosi, perfetti per una vita confortevole e raffinata. La sua posizione privilegiata vicino al Parco di Monza ti permetterà di godere della tranquillità e del verde circostante.
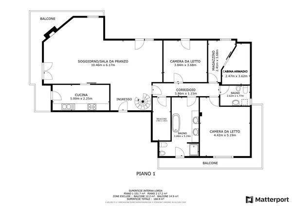
L'attico dispone di un ampio salone con camino, ideale per serate invernali accoglienti, e una zona pranzo separata per cene eleganti. La cucina abitabile è perfetta per chi ama cucinare e ricevere ospiti. Il punto forte è l'ampio terrazzo con vista panoramica, dove potrai rilassarti e ammirare il paesaggio.
Le tre camere da letto sono spaziose e luminose, con due bagni finestrati che garantiscono comfort e privacy. La cabina armadio e il ripostiglio offrono ulteriore spazio per organizzare i tuoi effetti personali. Al secondo livello, un locale con vista sulle montagne aggiunge un tocco di esclusività.
Completa la proprietà una cantina e un box doppio inclusi nel prezzo, oltre a un balcone e armadi a muro. L'immobile, costruito nel 1976, è in buono stato e adatto anche per persone con mobilità ridotta grazie all'accesso adattato. Il riscaldamento è elettrico a gas naturale, con orientamento su tutti i lati: Nord, Sud, Est e Ovest.
Non perdere l'opportunità di vivere in questo attico unico nel suo genere, classe energetica F con un consumo di energia di 249,43 kWh/m² anno. Contattaci per maggiori informazioni e per fissare una visita!
L'attico dispone di un ampio salone con camino, ideale per serate invernali accoglienti, e una zona pranzo separata per cene eleganti. La cucina abitabile è perfetta per chi ama cucinare e ricevere ospiti. Il punto forte è l'ampio terrazzo con vista panoramica, dove potrai rilassarti e ammirare il paesaggio.
Le tre camere da letto sono spaziose e luminose, con due bagni finestrati che garantiscono comfort e privacy. La cabina armadio e il ripostiglio offrono ulteriore spazio per organizzare i tuoi effetti personali. Al secondo livello, un locale con vista sulle montagne aggiunge un tocco di esclusività.
Completa la proprietà una cantina e un box doppio inclusi nel prezzo, oltre a un balcone e armadi a muro. L'immobile, costruito nel 1976, è in buono stato e adatto anche per persone con mobilità ridotta grazie all'accesso adattato. Il riscaldamento è elettrico a gas naturale, con orientamento su tutti i lati: Nord, Sud, Est e Ovest.
Non perdere l'opportunità di vivere in questo attico unico nel suo genere, classe energetica F con un consumo di energia di 249,43 kWh/m² anno. Contattaci per maggiori informazioni e per fissare una visita!
Consistenze
| Descrizione | Superficie | Sup. comm. |
|---|---|---|
| Principali | ||
| Immobile - 3° piano | 242 Mq | 242 Mqc |
| Totale | 242 Mqc | |







